
외식창업지원센터입니다. 저희 센터는 남양주에 사무실이 있어 인근 지역을 주로 활동하지만 외식업 매장이라면 서울 및 수도권 인테리어는 별도의 비용 추가 없이 무료견적 및 맞춤형 자동화 주방 인테리어 전문업체가 많지 않아 전국 부산과 제주도 까지도 직접 진행하고 있는 '외식업 전문 인테리어 기업'입니다. 오늘은 40평대 인테리어 견적을 받는 방법에 대해 알려드리려고 합니다. 여러분과 같은 고객님들이 인테리어 견적을 받을 때 어떤 점을 고려하고 어떤 과정을 거쳐 견적을 받을 수 있을지 설명드리겠습니다.
인테리어 견적 받는 1단계.


: 인테리어 1단계는 인테리어 준비 단계라고 생각하시면 됩니다. 이것 저것 하고 싶었던 것들을 개별적으로 많은 생각을 하셨겠지만 좋은 것을 모두 모아 놓았다고 좋은 인테리어가 되지 않아요, 그러니 이쁘고 좋은 것들만 추린다고 맘에 드는 것들을 하나 두 개씩 모으지 마시고요, 한 느낌으로 결정을 하시는 것이 좋습니다.
- 계획 수립 : 어떤 공간을 중점적으로 꾸미고 싶은지 생각을 하셔서 하나의 단어로 생각을 정리해 보시는 겁니다. 예를 들어 '모던한 스타일의 주방이나 나늑한 거실' 등과 같은 표현으로 말이죠, 다만 모던한 느낌은 의도한 분들이나 받아들이는 입장이나 다소 생각 차이가 있을 수 있으니 내가 원하는 느낌의 이미지를 준비해 놓는 것이 가장 확실한 방법입니다.
- 예산 설정 : 대략적인 예산을 설정하시면 되는데요, 사실 이부분이 가장 어려운 부분이죠, 처음 하시는 분들은 말이 예산이지 도무지 감을 잡을 수 없기 때문인데요, 이럴 때 우리 음식점은 좋은 지표가 있답니다. 거의 99%의 분들이 모르고 사용하지 않는 방법인데요, 프랜차이즈 본사들은 정부에 창업비용을 법적으로 등록하게 되어 있습니다. 이것을 이용하는 것이죠, 아래에 링크를 걸어 드릴게요, 여기 들어가셔서 직접 보시면 됩니다.
https://franchise.ftc.go.kr/mnu/00013/program/userRqst/list.do
가맹사업거래 > 정보공개서 > 정보공개서 열람
가맹사업의 공정한 거래질서의 확립을 위하여 함께하는 가맹사업정보제공시스템
franchise.ftc.go.kr

평소에 내가 하고 싶었던 느낌과 가장~ 유사한 브랜드 매장을 찾아 보세요, 그리고 그 매장에 가셔서 이미지를 몇 컷 촬영하시면 계획수립은 끝이고요, 예산은 상기 링크에 들어가서 해당 브랜드의 인테리어 비용을 확인하시면 됩니다. 여기서 인테리어는 보통 평당 160에서 180만 원 정도 하는데요, 문제는 이 부분에는 순수 인테리어로 실제로 간판비용, 냉난방 비용, 의탁자 비용 등등 을 모두 넣어 보면 약 400만 원에서 500만 원 이상이 나옵니다. 좀 좋은 곳들의 경우는 600만 원에서 800만 원대까지 있습니다.
아셨죠? 인테리어 비용은 막상 180만원 전후로 나오지만 실제 공사를 하면 400만 원대까지 창업비용이 올라간다는 사실만 기억하시면 됩니다.

견적 받고 비교하는 방법 2단계
기본적으로 여러 업체에 문의를 하여 보통 3곳 이상의 인테리어 업체에 연락을 해서 견적을 받아 보는 것이 일반적인 패턴입니다. 그리고 결론은 지인 업체가 더 잘해 줄 것 같다는 판단을 하시고 단순한 신뢰와 가격만 보시고 결정을 하시죠, 업체들이 제출하는 포트폴리오가 화려하겠지만 제 경험상 가격과 업체의 포트폴리오보다는 시공자의 능력이 중요합니다.
- 실측 요청 : 그동안 수백개의 매장 오픈을 지켜보면서 그래도 여러분들이 가장 맘이 편하시려면 연이 닿는 업체에 실측과 설계도면 그리고 디자인을 잡으세요, 별도로 비용을 보통 200만 원에서 300만 원 정도 비용을 주시면 평면도와 기초 입면도, 3D등과 함께 견적서를 함께 받아 보실 수 있고요, 이 도면과 견적서를 기준으로 도면을 다른 2개의 업체에 전달하셔서 비용을 검증하시는 겁니다. 그 도면과 1단계에서 준비된 사진을 가지고 견적을 내면 크게 차이가 없습니다. 저렴한 가격이 나오겠지요,
이후 이 가격을 지인 업체에 전달해서 해당 업체도 인정을 하면 그 업체에게 맡기는 것이 현실적으로 가장 합리적이더라고요,
- 상세 견적서 요청 : 이렇게 3개의 업체 중 한 곳이 결정 되시면 상세 견적서를 요청하세요, 각 공정별로 세부 내역이 기재된 견적서를 요청하시면 되는데요, 이러면 불필요한 추가 비용을 피할 수 있습니다. 또한 누락된 부분들을 찾기도 좋습니다.


주의사항!!
추가 비용 유의 : 업체들이 자사의 견적서 비용을 낮추려고 평단 단가를 최소한으로 잡고 나중에 공사를 하면서 추가 공사가 발생하면 이때 추가 비용을 주겠다고 계약을 하는데요, 이것이 함정입니다. 우선 계약을 하고 나면 업체를 바꾸기가 힘들기 때문에 마치 공사비가 굉장히 저렴한 것처럼 해놓고 추가 공사비를 많이 up 해서 요구하는 경우가 가장 많고 일반적입니다.
앞서 프랜차이즈 본사 인테리어 비용이 160만원 180만 원처럼 저렴해 보이지만 실제는 제가 400만 원 정도 나온다고 하는 것도 같은 상황이라고 보시면 됩니다. 가맹본사들이 인테리어 비용에 본사 수익을 얻는데 이러면 비싸지기 때문에 추가 공사비용에서 수익을 내면 문제가 없어 보이기에,,, 이렇게 합니다. 조삼모사라고 보시면 되는 겁니다.
포트폴리오 확인 : 업체가 다양한 곳을 시공한 사례를 나열 하는데요. 그런 화려한 이력은 필요 없고요, 정말 검증된 업체를 선택하시려면 가장 간단한 방법이 있습니다. 포트폴리오도 필요 없이 관공서 공사 실적이 있었는지 없었는지 확인하시면 됩니다. 저희 센터도 최근 공사 중에 전년도에 경기도 모 시청의 자금으로 4억이 넘는 인테리어 공사를 했었는데요, 제가 직접 서류를 준비했지만 무려 하나의 공사에 50가지 서류가 작성되어야 합니다.
면허에서 세금, 근로자 관계등 관공서 공사를 하려면 어느 한곳에 문제가 있어도 안되기에 특히 보험 부분까지도 들어야 하기 때문에요, 공사 몇 곳 하고 잠수 타는 그런 작은 곳들은 할 수 없습니다. 여러분들이 시공사례를 많이 보시죠? 그것은 그냥 사진에 지나지 않아요, 인테리어 막 끝나 준공시점에 사진 찍어서 제대로 나오지 않으면 그것이 더 이상한 것 아닌가요? 명심하세요. 공사 이후에도 A/S 등을 확실하게 받고 싶으시다면 관공서 공사 유무만 확인하시면 끝입니다.
계약서 작성 : 모든 것이 조율되어 계약을 하면 됩니다. 저희 센터 같은 경우는 기본 계약금으로 60% 중도금 30% 잔금 10% 이렇게 3회로 나누어 받고 있습니다. 계약 전에 꼼꼼하게 검토하시고 추가공사 부분, A/S기간 , 비용결제일, 특약 사항 부분을 눈여겨보시기 바랍니다.

외식창업지원센터의 강점!!
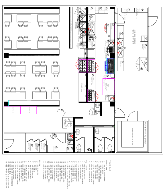
저희 센터에서는 그동안 1천개 이상의 외식매장을 관리하면서 수백 개 매장을 직접 설계해 왔기에 제가 직접 여러분들 매장의 디자인 콘셉트와 조리사와 같은 직원들의 일하기 편한 시점을 고려하여 설계합니다. 가장 큰 차이가 외식창업플래너가 직접 우리 메뉴에 맞는 주방레이아웃을 설계한다는 것이 포인트라고 보시면 됩니다. 진정한 외식전문점 인테리어 업체입니다.
- 모던 인테리어 시공 : 고가의 화려하고 아름다운 인테리어 보다는 현대적이고 깔끔한 디자인으로 경제적인 가격으로 시공
- 비용 절감 : 다양한 파트를 가맹본사들과 거래하던 가격으로 진행 합리적인 가격에 고품질의 인테리어 제공
- 맞춤형 설계 : 다른 매장 도면을 붙혀 넣기 하는 것이 아니라 고객이 취급하는 메뉴와 매장 구조를 반영하여 매장 설계
- 돈 버는 매장 : 수익률을 높이기 위해 인건비 절감을 목표. 주방자동화 설비 컨설턴트가 메뉴에 맞는 자동화 장비 적극 반영
- 사후 관리 : 센터에서는 담담 이사가 현장에서 직접 시공하고 직접 A/s 를 가는 것을 원칙으로 가맹본사들과 주거래 계약

저희 외식창업지원센터는 고객님의 요구에 맞춘 맞춤형 인테리어를 제공하며, 예비창업자 무료 교육을 함께 진행하고 있습니다. 투명한 견적과 철저한 사후 관리를 해드릴 것임을 약속드립니다. 언제든지 문의하시면 실시간 상담해 드리겠습니다. 감사합니다.

이 포스팅이 여러분께 도움이 되셨기를 바라고 공감과 댓글 부탁드립니다. 더 많은 인테리어 관련 정보를 저희 홈페이지와 블로그를 통해 확인 사실 수 있습니다.
'외식창업지원센터 > 인테리어견적·시공' 카테고리의 다른 글
| 업종변경 하려다 공사비만 2천... 결국 센터 도움으로 매출 2배 올렸습니다. (0) | 2025.05.02 |
|---|---|
| 돈 벌어주는 외식업 전문 인테리어 업체가 있다는데 정말 사실일까? 이 업체 모르면 나만 손해~ (0) | 2025.04.15 |
| 성공하는 음식점에는 이유가 있다? 차별화된 인테리어 디자인 설계 받으려면 여기로~ (1) | 2025.04.10 |
| 외식업 인테리어 디자인 견적 받는 방법은? (0) | 2025.04.04 |
| 음식점 30평 규모 인테리어 시공 사례(함박연) (0) | 2025.03.21 |
