
30평 인테리어
30평 정도 되는 일본식 함박 스케이크 전문점 공사를 계약하게 되었습니다. 점주님은 셰프님이시기에 다른 공사의 경우 인테리어 디장인의 경우는 저희 이사와 실장에게 맡기고요, 저는 셰프님과 주방 레이아웃을 최대한 만족 스럽게 설계해 드리는 것에 집중을 하였습니다.
이 매장은 부부가 운영하시는 매장으로 두분다 아주 꼼꼼하신 성향이 있으셔서 이런 분들을 만족 시켜 드리기 위해서는 저희도 굉장히 노력을 많이 했기에 정이 많이 가는 매장이었습니다. 그럼 지금 부터 공사 내용을 소개해 드리도록 하겠습니다.

1.1~1.2(좌) 계약직전까지 영업중이던 매장
1.3(중앙) 매장 철거
1.4(우) 철거 후 재실측 진행

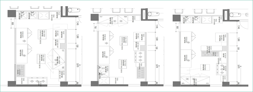
2.1(좌) 주방설계 A안
2.2(중앙) 주방설계 B안
2.3(우) 주방설계 C안
셰프님이 하시려는 요리와 방식을 설명 듣고 사용하고 싶은 장비들에 대해 가이드를 듣고 나서 이런 부분을 종합하여 3가지 주방 설계안을 제안 드렸습니다. 이때 본인이 생각하시다 막힌 부분이 있었는데 그 부분이 해결되서 너무 만족하신다는 소리를 듣고 나니 설계자로써 뿌듯합니다.
이렇게 주방 타입을 설정하는 동안 저희 조이사는 평면도를 완성하고 1차로 3D작업까지 들어가 미팅 준비를 마무리 해 놓았습니다.

3.1(상단-좌) 전체 평면도
3.2(상단-우) 전체 파사드
3.3(하단-좌) 대나무 디자인
3.4(하단-우) 내부 디자인
디자인 측인 면에서는 우드 톤과 조금 무겁게 가는 형태로 계획을 잡고 제안을 드렸으나 클라이언트분 께서는 어두운 분위기 말고 아주 밝은 분위기를 선호 하셔서 이후에 어두운 분위기에서 확 분위기를 바꿔 새롭게 제안해 드리게 됩니다. 이런 3D 작업을 하려면 시간도 오래 걸리고 제 입장에서는 시간이든 뭐든 다 비용이라 부담이 되지만 싹~~ 바꿔 드렸습니다.
타 업체에서 받으신 자료들도 참고해서 점주님의 의도를 다시 파악하고 디자이너와 저희 조이사가 열심히 점주님과 톡방에서 의견을 주고 받더라고요, 저도 결과물이 궁금했습니다. 저는 사실 디자인 적인 측면에는 관여 하지 않아요, 제가 들어가면 전 비용부터 계산하기에 클라이언트의 니즈와는 조금 거리가 있을 수도 있기도 하고요, 디자이너를 존중 하기도 해서입니다.

이렇게 수정을 해드렸더니 아주 만족을 하셨지만 그래도 전면 파사드 부분이 조금 약하다고 하셨던 것 같습니다. 그래서 저희 조이사가 일본풍이 나도록 자재비와 인건비가 많이 들어가지만 전면 파사드에 간살과 필름마감을 하기로 하였습니다.
세부적으로 설명해 드리면 다루끼 목재가 2가지 버전이 있습니다. 여기서 좋은 품질을 쓰면 아주 곧고 내장재로 쓰기가 좋은데요, 이 나무에 필름으로 둘러싸 목재의 내구성을 올리도록 하였습니다.

이밖에도 화장실 디자인까지 아주 세부적으로 잡아 드렸고, 이후 최종 협의 된 내용으로 공사를 들어 갔습니다. 이미 충분한 시간에 협의가 되었기 때문에 막상 공사를 들어가니 오히려 더 매장공사는 맡겨 놓으시고 오셔서 독촉이나 변경 등을 요구하시지 않아서 현장 담당자들이 아주 편하게 공사를 했다고 합니다. 처음에 꼼꼼하게 설계하면 이렇게 공사 과정이 매끄럽게 흘러 갈수 있습니다.

6.1 외부간살 설치작업
6.2 화장실 철거 후 재시공
6.3 BAR 설치
6.4 가구현장 제작 및 설치

7.1 65박스 대형 냉장고
7.2 스마트 렌지
7.3 참치 냉동고
7.4 작업대 제작
전면에 힘을 실어 힘들지만 간살로 모두 마무리하여 공사를 진행하였고요, 화장실 디자인에 신경을 많이 쓰셨기에 기존 화장실에 문제가 없었지만 모두 리뉴얼 해 드렸고요, 바 설치는 고객과 조리 및 서빙이 가능하게 최대한 디테일하게 높이를 맞춰 진행해 드렸습니다.
홀의 메인 좌석들은 붙박이지만 일본식 품으로 조금 독특하게 디자인 되었고요, 별도로 창고가 없어서 모두 수납장으로 만들어 드렸답니다. 주방설비도 모두 정상적으로 납품 설치가 되었습니다. 제품 하나하나 대표님과 저희 김이사가 조율하여 가격이나 제품 거의 대부분을 맞춰 드렸습니다. 숙성이 필요해 저장공간이 많아야 해서 규모에 비해 큰 65박스 냉동냉장고가 입고 되었고요, 화거는 고기를 굽게 될꺼라 청소가 쉽고 잘 막히지 않는 그런 렌지가 설치 되었습니다.
음식점 재료의 선도를 위해 가격이 나가지만 고가 고품질의 식자재를 보관할 참치 냉동고도 별도로 구매하셨습니다. 주방의 면적이 부족해서 최대한 공간에 맞춰 작업대 설치를 희망하셔서 모두 현장 실측을 해서 최종 발주하여 니즈를 모두 만족시켜 드리며 공사를 마감하였습니다.
사무실에서 가깝다 보니 저희 조이사와 가끔씩 퇴근 길에 들러서 식사를 하고 가는 그런 매장이 되었습니다. 고기가 먹고 싶은데 조이사가 술을 하지 못하다 보니 이렇게 함박 스테이크를 먹고 헤어지는것이 아주 깔끔하더라고요, 갈수록 인지도가 있어서 장사가 잘되고 있다고 하니 아주 뿌듯합니다.
공사에 만족한다는 것을 느낄 수 있는 것은 공사후 영업중 방문 하였을 때에 점주님들의 태도를 보면 알수 있죠, 저희가 돈을 내려고 해도 받지 않으시려고 하고, 서비스로 뭐하나 더 주시려고 하고요. 물론 그래도 저는 현금이라도 꼭 두고 옵니다. 세상에 공짜는 없으니까요. 그럼 이 현장은 어떻게 영업 중인지 한번 공개해 드리겠습니다.

일반 매장과 다르게 밝고 화사한 레스토랑과 같은 인테리어로 창업을 하시고 싶다면 외식창업지원센터에 인테리어 의뢰해보시는 것은 어떠세요? 외식업 전문가가 직접 메뉴에 맞게 주방을 세팅하고 품목 리스트와 견적까지 해드리고 동시에 인테리어 견적까지 뽑아드리죠.
동네 업자들 처럼 도면하나 두고 공사하는 것도 아니고 전문시공팀과 디자이너가 현장에 나와 직접 챙겨 사진들 처럼 깔끔한 매장을 만들어 드립니다. 이 매장을 공사하는데 비용이 얼마나 들었을까요? 궁금하시고 인테리어를 하셔야 겠다면 지금 바로 상담신청해주세요.

'외식창업지원센터 > 인테리어견적·시공' 카테고리의 다른 글
| 남양주 식당 40평 인테리어 견적 받아보기 (0) | 2025.04.11 |
|---|---|
| 성공하는 음식점에는 이유가 있다? 차별화된 인테리어 디자인 설계 받으려면 여기로~ (1) | 2025.04.10 |
| 외식업 인테리어 디자인 견적 받는 방법은? (0) | 2025.04.04 |
| 18평 매장 의정부 인테리어 공사 진행 사례 (1) | 2025.03.20 |
| 음식점 10평 규모 인테리어 시공, 견적 사례(행컵 수지구청) (1) | 2025.03.20 |
