
10평 인테리어
날씨가 추운 겨울철에는 공사를 하기 힘든데 이날도 많이 추웠습니다. 주방 방수작업이나 설비 시설을 하려면 애를 좀 먹겠다는 생각으로 본사 대표님과 현장에서 미팅을 하고, 현장 실측을 하고 돌아 왔습니다. 이 매장은 실평수 10평 정도의 전형적인 직사각형 매장이라 실측하기가 어렵지는 않았어요.
막상 영업중인 관계로 벽체등이 막혀 있어서 오히려 이 좁은 매장을 실측하는데 어려 웠습니다. 역시 제대로 실측하려면 모두 철거를 한 후 진행하는것이 가장 좋은 것 같습니다. 여튼 이날 본사의 인테리어 매뉴얼 설명과 요청사항을 듣고 바로 현장 실측을 진행하였습니다.

한 본사에서 계약의 중요한 매장이라고 하여 계약이후 실견적을 내어 드리지만 가맹본사들은 간혹 이렇게 계약전에 가견적을 내어 드리기도 합니다. 본사 대표님이 직접 챙기시기에 저도 조이사만 보낼까 하다가 저도 직접 실측을 나왔습니다.

인테리어 실측 할 때 저희가 반드시 확인 하는것 중 하나가 전기 분전함 입니다. 인테리어 기본 비용에 들어가지 않고 나중에 추가 공사 비용으로 나오기 때문에 사전에 말씀을 드려 놓지 않으면 꼭 저희가 비용을 올리려고 공사를 더 하는 것처럼 인지 하시는 분들이 계셔서 꼭 확인합니다. 이런 일반 관리자가 없는 건물은 계약 용량을 점주나 부동산을 통해 확인하고 대형 건물의 경우는 관리실에서 확인합니다.
이 매장의 경우는 주방을 흔히 하는 습식 주방이 아닌 건식 주방으로 하신다고 하는데요, 공사비용은 적게 들어가지만 주방에서 조금만 음식이 떨어지면 청소가 쉽지 않기에 홀에 다 뭍어 나와 홀까지 지저분해지기 때문에 저는 권장하지 않는데 원하시니 그렇게 해드려야죠, 기존에 방수턱등이 있어서 이부분을 어떻게 해야 할지 조이사와 상의를 합니다.
이렇게 실측을 마지고 저는 바로 사무실 복귀하여 인테리어 조이사님과 주방설비 김이사님이 각각 견적을 낼 수 있도록 기초 도면을 설계하기 시작합니다.

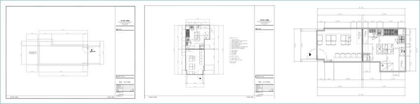
사진3.1(좌) 건물 실측 평면도
사진3.2(중앙) 설계 후 주방설비 견적용 설비 품목리스트 작성
사진3.3(우) 인테리어 견적용 평면도
다행이 본사에서 참고 할 만한 이미지를 몇 가지 보내 주셔서 주방 설계하는데 큰 무리가 없이 빠르게 설계를 마무리 하였습니다. 인테리어 부분도 견적을 잘 내어 드렸고요, 품목별로 공사 비용이 나왔고 점주 님이 비용을 줄이기 위해 일부 공사를 하시지 않겠다고 하셔서 그 부분은 저도 양보를 해드렸습니다.
사실 이런 작은 평수를 저희 업자들은 선호하지는 않습니다. 왜냐면 품은 같이 들어가는데 소비자 분들은 평수만 작으면 비용도 같이 줄어 드는것으로 이해하시는데요, 이렇게 10평 대 매장은 6평이나 10평이나 큰 비용 차이가 없습니다. 10평짜리 공사가 1000만원 들어 5평이라고 500만원 되는것이 아닙니다. 거의 똑같이 들어갑니다. 자재비 조금 차이 날 뿐 전체적인 비용은 크게 차이가 나지 않습니다.

인테리어 견적과 주방설비 비용에 본사와 점주간의 모든 합의를 마치고 바로 공사를 시작하였습니다. 공기를 줄이기 위해 공정이 진행되고 건조나 양생이 되면 바로 바로 공사를 이어갑니다. 대부분 공사를 빨리 끝내기를 원하시는데요, 이렇게 되면 공기를 줄이기 위해 같은 공사에서 같이 작업이 진행되기에 작업자 분들이 상당히 싫어 하시는 공사라 저도 현장 인부분들 비위를 잘 맞춰가며 공사해야 합니다.
특히 이 매장의 경우는 주변에 민원 넣기 좋아하시는 분이 계셔서 민원 때문에 여러 번 공사 일시중지를 하는 바람에 공기가 계속 밀리게 되어 힘들었습니다. 요즘 매출이 떨어지니 다 남탓이 되어 버려 참 힘들게 공사를 하였던 매장입니다. 보통 밥집은 천장을 아래 이미지 처럼 막아서 마감을 하는데요, 이 매장은 비용을 줄이기 위해 천정을 노출하여 도색작업으로 진행하게 되었습니다.

사진5.1(좌) 10평형 천장 막는 공사 현장(타현장 참고용)
사진5.2(중앙) 10평형 천장 막는 공사 현장(타현장 참고용)
사진5.3(우) 벽체목공사(타현장 참고용)

사진6.1(좌) 천정도색작업
사진6.2(중앙) 레일등 설치
사진6.3(우) 가구배치

사진7.1(좌) 냉장고 및 세정대 설치완료.
사진7.2(중앙) 간데기 납품 및 설치완료.
사진7.3(우) 냉장고 쇼케이스 납품 및 설치완료.
저희 주방은 제가 상무로 있는 킴스토탈에서 제가 직접 진행하는데요, 저희의 경우는 저렴하기는 하나 인터넷 최적가에는 도저히 비용을 맞출 수가 없습니다. 왜냐면 저희는 온라인에서 주문하면 배송하고 끝나는 것이 아니라 제가 조리사 였기 때문에 주방에 높이, 각 안맞는거 너무 싫어해요.
때문에 저희는 부산이고, 제주도 까지도 모두 저희 직원들이 직접가서 설치하고 세팅을 직접 마무리 하기 때문에 자재비에 발주 전, 타일공사 마감후 최소 1~2회 현장을 방문하고 최종 납품 설치를 들어가기 때문에 완성도가 높아요, 모두 사람이 하는것이다 보니 최저가로 도저히 맞출 수가 없습니다. 대신 점주님들은 걱정하실 일은 없죠, 설치도 AS도 잘 되니까요, 이 매장도 각 잘 맞추고 깔끔하게 설치 마무리 되었습니다.

여기는 제가 요즘 동선이 맞지 않아 오픈 후 방문해 보지 못했는데요, 온라인에 보니 이렇게 홍보도 되어 있고 영업 잘하고 계신 것 같습니다. 초반에 몇 번 잘 모르시는 부분들 체크해 드렸고 일부 만족하시지 못한 내용들이 있다고 하신 부분들도 저희 조이사가 직접 가서 모두 해결해 드렸습니다.
여러분들이 간혹 최저가 인테리어 등을 하시게 되면 이렇게 후속조치를 원할때 전화 연락도 안되고 방문 약속을 하여도 매장와서 조치를 해주지 않아 불편을 많이 겪으시게 됩니다. 인테리어는 싸고 좋은 것 절대 없습니다. 주방설비, 인테리어 싸게 처리해서 사라지는 곳들 많아요, 나중에 속 썩지 말고 제대로 된 업체와 계약하셔서 좋은 매장 만드셨으면 합니다. 이렇게 10평대 매장도 공사가 잘 마무리 되었습니다.
배달전문 매장부터 10평 소규모 매장의 다양한 시공경험이 있습니다. 최대한 매장 상황에 맞춰 비용을 최소화 하여 매장 인테리어를 진행하고 있습니다. 소규모 매장 인테리어를 하시려면 지금 바로 외식창업지원센터와 상담해 보세요.

'외식창업지원센터 > 인테리어견적·시공' 카테고리의 다른 글
| 남양주 식당 40평 인테리어 견적 받아보기 (0) | 2025.04.11 |
|---|---|
| 성공하는 음식점에는 이유가 있다? 차별화된 인테리어 디자인 설계 받으려면 여기로~ (1) | 2025.04.10 |
| 외식업 인테리어 디자인 견적 받는 방법은? (0) | 2025.04.04 |
| 음식점 30평 규모 인테리어 시공 사례(함박연) (0) | 2025.03.21 |
| 18평 매장 의정부 인테리어 공사 진행 사례 (1) | 2025.03.20 |
