인테리어 얘기는 이 블로그에는 별로 없지만 네이버 블로그에는 많이 있어요, 때문에 오늘은 약간의 디테일을 담아서 최근에 레이아웃 설계를 했었던 매장 도면을 가지고 고깃집 주방을 한번 안내해 드리도록 하겠습니다.

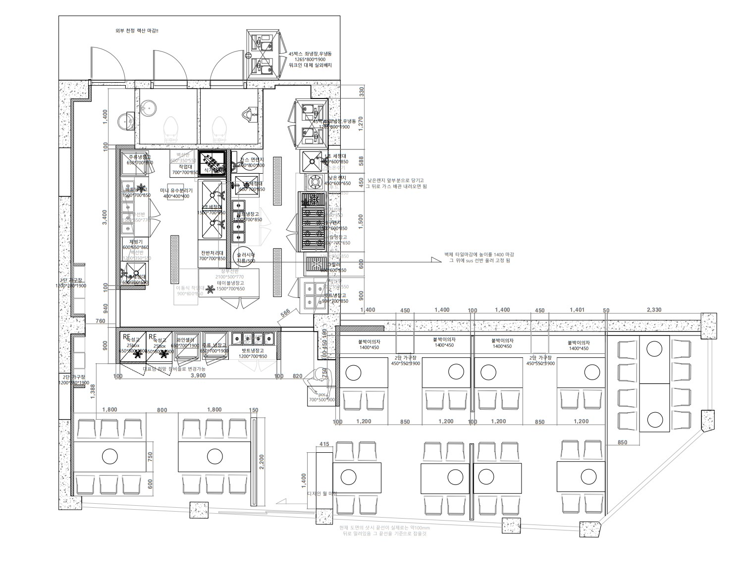
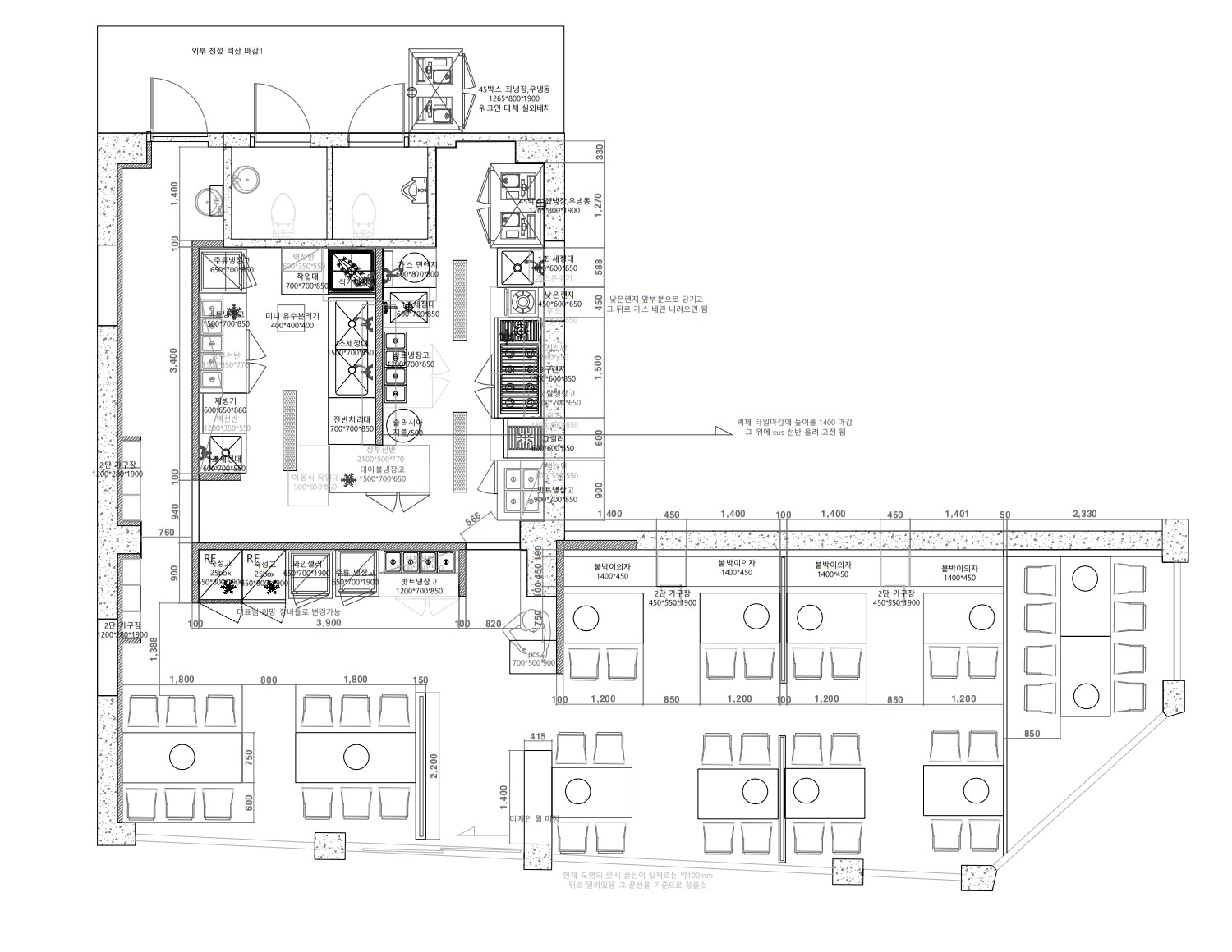
위 평면도가 무려 6번이나 뜯어고쳐 완성된 평면도입니다. 제가 이렇게 그려 놓으면 저희 인테리어 담당 조이사와 디자인 양실장님이 디테일을 잡아 인테리어 견적과 디자인을 완성하게 되는 순서입니다. 저희 외식창업지원센터는 이런 식으로 작업이 이뤄집니다.
조리사 출신인 센터장이 매장설계
실내건축과 일반건축 시공 및 인테리어를 직접 진행하는 조이사
센터장이 주방,공사팀과 협의하여 완성된 도면을 디자이너서 평면도 및 3D 제작
ㅎㅎㅎ 저는 이제 손을 떼어 냅니다. 이제 우리 직원분들이 감각적으로 만들어 줄 겁니다.
매장 대표님에게 원하시는 디자인 컵셉 이미지들을 받아 놓았습니다.
제가 굳이 디자인을 신경쓰지 않는 것은 제 기준은 " 음식점은 깨끗하고 불편하지 않으면 됩니다. " 디자인을 못해서가 아니라 디자인은 지극히 호불호에 의해서 진행되기에 여기저기 의견이 많으면 산으로 갑니다. 저는 저희 팀원들을 믿기에 그냥 다 맡기죠!!
그래서 오늘은 제가 주로 하는 업무인 매장 레이아웃 중에 주방에 대해서 설명해 드리려고 합니다.
홀의 경우는 저 도면에 보시면 테이블은 1200*750 정도로 잡았습니다. 초안엔 1300*800으로 잡았지만 매장 넓이나 폭이 애매해서 공간이 비효율 적이었습니다. 4회 차 수정 작업 할 때부터 이 테이블로 작성했습니다.
그리고 가스의 경우는 매립으로 가기로 했습니다. 가스 매립은 도면과 비용이 많이 들어가지만 깨끗합니다^^
아 좀 억울해서 이 말은 하고 가야겠어요^^
제가 컨셉이나 주방을 몰라서 이렇게 크게 6번이나 매장 설계를 바꾼 것이 아니고요, 여기 사장님께서 이런 메뉴 할게요, 아니요 이런 메뉴,,, 매장은 이렇게 저렇게 수정해 달라고 하셔서입니다. 크게 주방위치 변경, 냉면을 반죽해서 하시려고 했다가 다시 기성품,,, 등등 여러 사연이 있었습니다.

이해가 되시려나요? ㅎㅎㅎ 여러분들이 이해하시면 말이 안되죠, 색깔도 알록달록하고 뭐 정신없죠
제가 위치나 고민하는 흔적에 따라서 컬러가 정해집니다 보통은 기준을 잡아서 움직이게 되는데요, 저는 이렇게 저렇게 하다 보니 컬러가 좀 다양해서 복잡한 편입니다.
우리 디자이너나 주방 공급업체는 이제 저에게 적응되셔서 다들 잘하세요 ^^
일반적인 매장과 차이점이 있다면 중앙 우측에 세척라인이 있는데 별도로 그릇을 건조하는 공간이 없는 것을 보시면 알 수 있어요. 이 매장의 경우는 그렇게 저렴한 곳이 아니라 그릇들도 다 무거울 거라서 고민을 좀 했습니다.
또한 눈에 띄지는 않지만 여기가 소고기 집이 될 거라서 유수분리기나 트렌치도 중요하죠, 이때도 배관의 포인트를 잡기 위해 세척기 위치도 저렇게 잡았습니다
첫 번째 별도의 건조용 선반들이 보이니 않는 이유!
그것은 좀 큰 매장들을 보면 세척이 끝나면 그릇들 챙기는 것들도 다 일이죠, 세척한 직원이 그릇을 가져다 놓거나 급하면 조리사들이 세척 라인에 와서 그릇을 가져와야 되기도 합니다. 물론 조그만 매장은 상관은 없을 거예요.
저는 이렇게 이동동선을 만들고 싶지 않아서요, 주방의 중앙라인에 녹색 선반이 있을 거예요, 그리고 상부에도 녹색 벽선반들이 있고요, 보면 바로 보여요.
세척라인에서 그릇을 빼면 바로 그 그릇을 사용하는 자리에 놓게 됩니다 별도의 이동 없이 세척기에서 세척된 그릇이 나오면 작업자 앞뒤로 있는 자리에 올려놓으면 됩니다. 홀 직원들은 세척된 그릇을 그대로 가져가 홀에 배치하면 되고요, 조리사의 경우는 냉면은 이동할 필요도 없죠, 조리된 냉면을 머리만 들면 세척라인에서 세척해 놓은 그릇이 그대로 놓여 있기에 그냥 자연스럽게 그릇이 채워지게 됩니다. 누구도 그릇을 채우고 가지러 가는 불필요한 동선을 없애버렸습니다.
옆에 뚝배기도 나가게 되면 뒤돌면 그릇이 있어서 이동할 필요는 없습니다. 뒤도면 그릇이니까요. 설계를 잘 짜면 이렇게 직원들이 사소하게 이동하는 업무를 줄일 수가 있습니다. 특히나 서로 작업하는 것이 겹치게 되지도 않죠, 이 부분은 제가 별미지교 본부장 할 때 극강의 효율을 계산하게 되면서 이용한 방식입니다.
저는 이렇게 고민하고 해 드리지만 사실 사용자 분들은 잘 모르시는 부분입니다.^^ 정말 아시는 분들만 아시죠, 이 주방 신경 많이 쓴 주방이구나 하고 말이죠.

두 번째는 배관 포인트가 있습니다. 세척기가 있고 바로 1미터 앞에 유수분리가 있습니다. 보이시죠? 이해하기가 힘드시겠지만 뭐 있어요~~ 여기서 보통은 세척기 배관에서 바로 유수분리기로 배관을 연결하는 것이 통상 적일 겁니다.
하지만 저는 그렇게 하지 않아요, 세척기에서 나온 뜨거운 물의 하수는 정사각형처럼 배관을 돌아서 소고기 기름을 열과 세제로 녺여 내며 유수분리기로 내려가게 됩니다. 이해 되셨죠? 세척기를 쓸때마다 온수가 소 기름을 배관에서 녺여 내어 배관 청소를 해준다는 소리입니다. 그리고 유수분리기에 오면 이미 적당히 식어서 기름이 뜨게 될 것이고요, 그 기름을 건져내어 버리게 되면 장사를 아무리 오래 해도 하수 배관이 막힐 일이 없습니다.
이해들 하시려나 모르겠어요^^
외식창업지원센터에서 인테리어를 하면 이런 포인트들이 들어가게 되는 겁니다. 비용에서도 드러나지 않는 그동안 수많은 매장에서 벌여졌었던 사건 사고들을 처리하면서 방법을 찾은 노하우 들이죠.
보이지는 않지만 이렇게 구조를 만들고 나면 여러분들은 일하기 정말 쉬운 매장이 되는 겁니다.
여기에는 가장 최근에 나온 그릴 X라는 AI 고기 굽는 머신까지 적용하려고 했던 매장입니다. 원래 사장님께서는 설치할까 하다가 저에게 자문을 구하셨고, 4대 이상 설치 하시지 않을 거고, 희망하시는 1~2 대로는 인건비는 절감할 수 없는 구조, 다만 퍼포먼스로는 훌륭하다는 것을 인지하실 수 있도록 충분히 설명해 드렸습니다.
그래서 그 장비가 빠져나갔죠.
그렇게 넣었다 뺏다 하면서 주방 배치들이 다 바뀌고 바뀌고 했던 부분들입니다.
같은 도면이지만 제가 엄청나게 고민하면서 만들어지는 설계입니다.

포스팅을 하다 보니 디자이너가 저희 업무방에 디자인 컨셉 관련 이미지를 올렸네요, 아마도 저 보라는 건 아니고요, 조이사가 현장에서 직접 일을 하다보니 전화를 잘 못 받아요, 그래서 이미지 체크해 달라고 올릴 것 같네요~~ 랜더링 돌린 것이 아니고 지금 콘셉트틀 잡고 있는 것 같아요~
둘이 무슨 얘기하나 좀 가서 참견 좀 해볼까요? ^^
ㅎㅎ 아닙니다. 매장 대표님 원하시는 데로 다 맞춰 드리라고 제가 뱉었으니 점주님과만 소통하시는 게 맞습니다. 저는 이런 레이아웃 설계 담당이지 색을 입히는 작업들은 우리 이사와 실장이 전문가이죠. 저는 그저 거들뿐

우리 외식창업지원센터에서는 이렇게 식당 인테리어, 고깃집 인테리어, 주점 인테리어, 레스토랑 인테리어, 카페 인테리어 등을 하고 있습니다. 보신 것처럼 제가 직접 여러분들과 상담해서 하고 싶은 메뉴를 듣고 특이사항을 염두하여 매장 레이아웃을 설계합니다.
대부분 점주님들이 요구하시는 조건 "인건비 절감"을 목표로 말이죠, 여기에 저는 비용을 줄여야 하니까 AS 발생하지 않을 부분까지도 염두해야 합니다. 이렇게 만들어 드려요.
직영점, 그리고 노후 보장 용으로 꾸준하게 오래 장사하시려고 하는 매장이라면 단순하게 저렴한 인테리어 업체를 찾기보다는 우리 센터와 같이 꼼꼼하게 제대로 설계하고, 디자인하고, 시공을 하는 업체를 찾아 창업하실 것을 추천해 드립니다.
저는 제가 비싸게 받는다는 것이 아니고, 그냥 싸게 해 주세요, 하는 곳들과는 시작을 하지 않습니다. 이와 일 하는 거 제대로 해드리는 일을 하고 싶지 시간 지나면 망가질 것 알면서 당장 보기만 좋은 공사? 저는 그런 공사하지 않습니다.
이는 저희 조이사나 디자이너도 마찬가지입니다.
일이 많지 않은데도 바로 어제 모 본사의 인테리어 2곳 견적이 들어왔습니다. 본사 건물인데요, 여기 본분장님이 지인이기도 하세요. 그래도 저는 무리해서 싸게 해드리고 싶진 않습니다. 저는 제대로 된 시공과 가격으로 일을 하고 싶어요,
어디 한 곳이라도 정상적이지 않다면 꼭 서로의 신뢰가 깨지기 때문입니다. 이해하시죠?
외식창업지원센터는 최저가 인테리어 업체가 아닌 아주 오래가는 튼튼한 외식 매장을 만들어 내는 그런 인테리어를 합니다.

'외식창업지원센터 > 인테리어견적·시공' 카테고리의 다른 글
| 국밥 집 & 덮밥 집 두개의 매장을 한번에 창업하는 인테리어 현장!! 5일차 (1) | 2025.12.08 |
|---|---|
| 최저가 창업 샵인샵 매장 만들기 4일차 진행!! #가스설비공사 (0) | 2025.12.08 |
| 인테리어 하자보수 요청 (1) | 2025.07.26 |
| 음식점 전기 자꾸 나가요? 이유는 싸구려 공사 때문입니다. (6) | 2025.07.20 |
| 인테리어 싸게 맡겻더니, 한 달 뒤 벌어진 일들 (1) | 2025.06.30 |
