
외식창업지원센터입니다. 이번 포스팅에서는 10평짜리 소형 매장이 어떻게 준비되었고 어떤 교육을 받고 장사를 시작하기까지 슈퍼바이저 가 어떠한 역할로 매장을 세팅했는지 그 과정을 모두 설명해 드리도록 하겠습니다.
상기 매장은 2023년에 분당에 공사를 했었던 매장데이터를 그대로 안내해 드리도록 하겠습니다. 그때와 지금은 자재값이 많이 차이가 나서 공사 비용은 맞지가 않아서 공개해 드리지 않겠습니다.
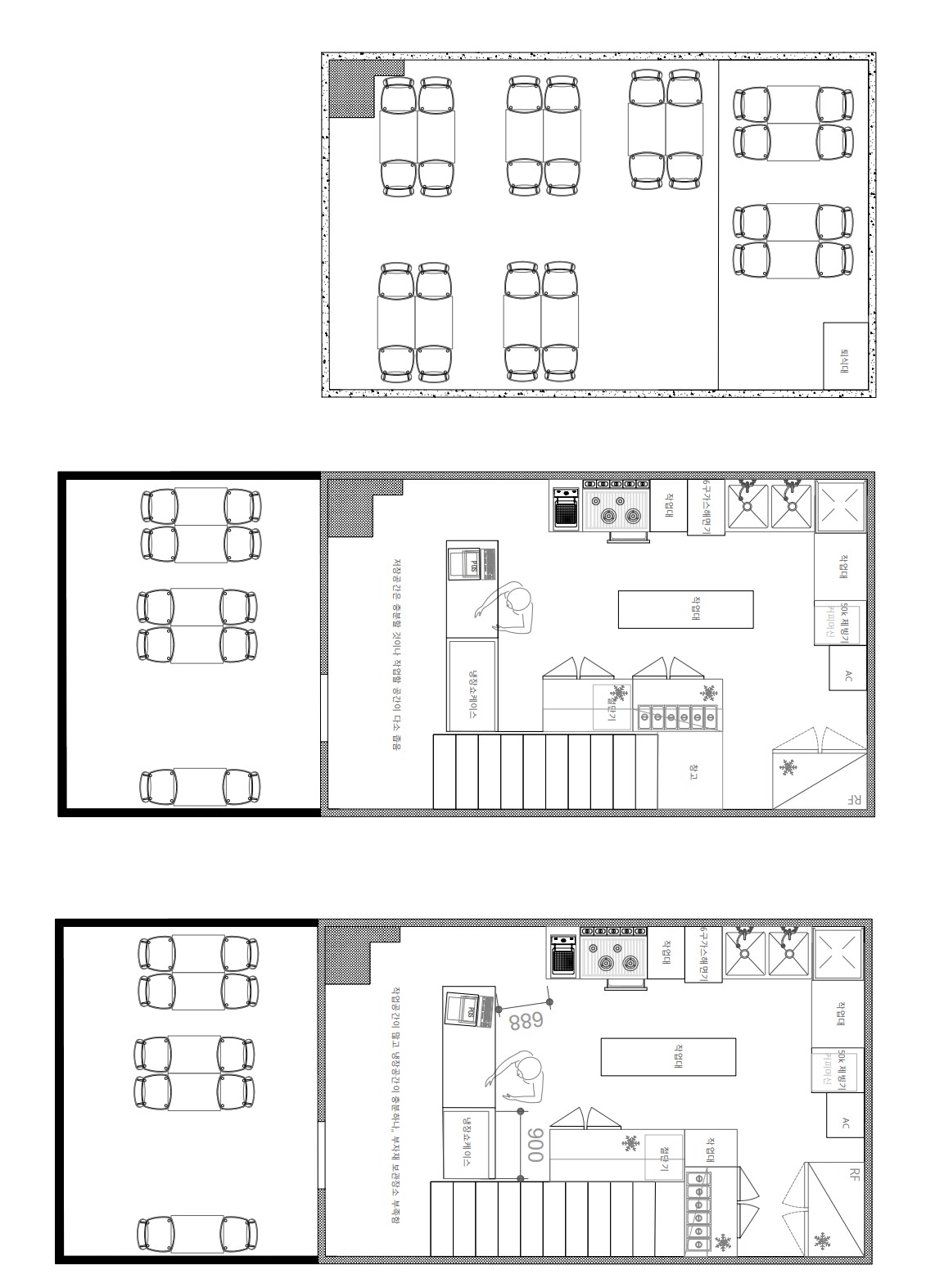
[ 분당의 10평 카페 형 분식 매장 창업 컨설팅 후기 입니다. ]

매장을 첫 방문하여 본점의 리뉴얼 부분과 분당의 직영매장 컨셉에 대해서 2~3회 미팅을 진행하였습니다. 단순하게 매장 하나를 오픈하는 것이 아니고, 메뉴에 맞는 주방설비까지 모두 한꺼번에 세팅하는 종합 컨설팅 공사였습니다.
본점 공사는 크게 문제가 되지 않아서 2~3일 안에 모두 공사를 마무리 해드렸습니다. 이 부분은 단순히 인테리어 설계 및 시공을 해드려서 컨설팅 영역은 아니라,,, 생략하고요, 바로 분당 직영점으로 넘어갔습니다.

우선 점주님의 의견을 최대한 반영하여 매장에 대해 기초 도면을 완성해야 합니다. 처음부터 완벽할 수 없기 때문에 상담 전에 이런 기초 도면을 만들어 가서 점주님가 상담을 하면 나중에 시행착오를 줄일 수 있습니다.
이때는 메뉴에 따라서 설치되어야 할 주방 설비들도 확인하고요, 점주님들이 이 도면을 보시고 조리사와 함께 그분들이 일하기 좋은 환경을 제안하시면 저는 그에 맞춰 제 경험을 살리고 새로운 장비를 제안하면서 약 1~2시간 정도 미팅을 하면 도면이 완성됩니다.
보통 컨설팅 하시는 분들은 자기주장으로 본인 의견을 주장하시지만 입장에 따라 틀린 게 아니고 다를 수 있다는 것을 아시고 컨설팅하셔야 합니다. 나는 이렇게 하는데 만약 왼손잡이라면? 동선이 다 바뀌겠지요? 그런 상대방의 입장을 감안하여 매장은 설계되어야 합니다. 아무리 제가 경험이 많은 조리사 출신의 인테리어 사장이라고 해도 여러분들 말이 맞을 수도 있는 것이거든요.
그렇게 미팅을 끝내서 도면을 완성하고요, 우리 센터의 방식대로 주방 설비 리스트까지 모두 마무리해드렸습니다.

본사 대표님도 직영점 식구들도 모두 만족한 평면 배치도였습니다. 이렇게 평면도에 준해서 인테리어 견적서와 주방설비 견적서도 함께 보내 드렸습니다. 당시에는 제가 주방업체 상무로 있었기 때문에 그분들을 저희 사무실로 초대하여 주방 설비 말고 집기류도 한 번에 보시고 처리해 드릴 수 있도록 해드렸습니다.




이렇게 기본적으로 인테리어 설계를 마무리해드렸고요, 카페 인테리어도 아니고 식당도 아니고 힘들었지만 여하튼 마무리는 잘해드렸고요, 주방 설비 집기등도 도면에 맞춰해 드렸습니다. 그리고 중요한 것은 메뉴 테스트도 함께 진행하였습니다.
외식창업컨설턴트인 저는 전문 조리사 출신이잖아요, 조리 교사 자격증까지 있고 한창 조리할 때는 조리교사로 제안받기도 했었죠, 때문에 이 브랜드의 경우는 실제 조리되는 메뉴에 대해서 함께 고민을 해주길 바랐기 때문에 열심히 도와 드렸습니다.

이 정도 했으면 하드웨어 적인 슈퍼바이저 업무의 기본적인 부분들은 반정도가 끝이 났다고 보시면 됩니다. 이제는 저는 저희 조이사가 공사만 잘 끝내면 되는데요,
이렇게 매장 메뉴가 확정되고 인테리어가 확정되고, 주방설비 집기가 끝났다고 장사가 잘 되는 것이 아닙니다. 절대적으로 이분들이 어떻게 매장을 끌고 갈지에 대해서 본점에 모두 모여서 이 매장의 승패를 결정 지을 교육을 시작해 드렸습니다.
이 브랜드의 경우는 밥집이기도 하지만 커피도 있고요, 젊은 친구들이 많이 오기도 하고 배달도 많고,,, 신경 쓸 것이 많습니다.
추후에 제가 1년 뒤 바로 옆에 다른 베이커리 카페도 종합 컨설팅하게 되어 방문했더니 장사는 여전히 잘 되고 있더라고요, 교육을 잘 받았다기보다는 그냥 잘 되었을 가능성도 있어요,

제가 매장 컨설팅에서 가장 중요시하는 부분입니다. 이 시트 하나만 관리 잘하면 장사? 너무 쉽고요, 여러분들도 해마다 무조건 매출을 올리 실 수 있습니다.
제가 이 데이터를 수년째 고집하는 이유는 이 방식으로 정말 너무 많은 매장들의 실제 매출을 꾸준히 올렸던 방법이었기 때문입니다. 교육할 때도 제가 가장 강조하는 부분이 이 시트를 기준으로 합니다.
이 시트를 기준으로 계절메뉴 운용과 함께 메뉴 관리법에 집중해 드렸습니다. 이렇게 매출 올리는 것에 대해 안내를 했다면 이제 마지막 컨설팅이자 교육은 음식점 위기대응 방법에 대해 교육해 드렸습니다.
이곳은 분당이기 때문에 또 매장 조리장도 바로 눈에 띄기 때문에 그 어느 매장보다도 식품위생교육에 철저히 진행해야 했습니다. 저의 경우는 무료 교육에도 기본적인 위생교육 관련 자료가 업데이트되어 있습니다. 과태료가 얼마인지 영업정지는 얼마나 되는지 실질 적으로 안내해 드립니다.
이렇게 교육은 마무리가 되고 종합 컨설팅도 마무리되었습니다.

사실 이 브랜드의 경우는 제가 계속 관리하기로 되었었지만 본부장을 별도로 채용하시기 되어서 제가 인테리어나 다른 기타 컨설팅은 모두 종료하게 되었습니다.
왠지 제 입장에서는 속은 느낌이었던 매장이죠, 별도로 컨설팅 비용을 받았어야 했던 종합 컨설팅 부분을 공짜로 다 해드렸으니까 말이에요, 이제부터는 그러지 말아야지 하면서도 여러분들이 열심히 물어보시면 제 노하우를 다 빼 가실 수 있답니다.
소형 매장이었지만 교육은 모두 똑같이 진행해 드렸습니다. 매출을 올리는 방법도 위생법규 사항도 말이죠, 브랜딩까지 모두 해드렸고 아직도 장사 잘 되고 있는 것을 보면 비록 이제는 관리하지 않지만 만족하는 매장입니다.
'외식창업지원센터 > 창업교육·컨설팅' 카테고리의 다른 글
| "슈퍼바이저 교육만으로는 안되는 이유 - 실무 중심 교육의 진실" (1) | 2025.05.01 |
|---|---|
| 하루 두 번 장사, 하이브리드 매장의 모든 것 (0) | 2025.04.30 |
| 혼자 운영하는 매장, 1년간 관리해 드립니다. (0) | 2025.04.23 |
| 장사가 잘 안되시죠? 슈퍼바이저 출신 외식전문 컨설턴트가 알려드리는 매출 올리는 노하우 딱 10가지!! (0) | 2025.04.23 |
| 먹는게 남는 장사라는 밥집 창업을 생각하신다고요? 이 정보 알고 시작하시면 돈 버는 겁니다. (0) | 2025.04.14 |
